Defro Home intra XSM G

Defro Home intra XSM G witte chamotte Defro Home intra XSM G zwarte chamotte tekening Defro Home intra XSM G frame tbv Defro Home intra XSM G uitgewerkte uitleg hoofd onderdelen Defro Home intra XSM G Defro Home intra XSM G warmteopslagstenen Defro Home intra XSM G Defro Home intra XSM G Defro Home intra XSM G
Defro Home intra XSM G witte chamotte Defro Home intra XSM G zwarte chamotte tekening Defro Home intra XSM G frame tbv Defro Home intra XSM G uitgewerkte uitleg hoofd onderdelen Defro Home intra XSM G Defro Home intra XSM G warmteopslagstenen Defro Home intra XSM G Defro Home intra XSM G Defro Home intra XSM G
Defro Home intra XSM G
Defro Home intra XSM G. Een inbouwhaard van het type liftdeur van zeer goede kwaliteit.

Artikelnummer

def115-150

Voorraad : 0

 

Defro Home intra XSM G Liftdeurhaard


De Intra serie heeft een uitgebreide serie van zowel draaideur-haarden als liftdeur-haarden.
De Intra serie haarden is er van klein tot groot, vlakke haarden, hoekhaarden tot doorkijk-haarden. al deze haarden zijn van een hoog rendement en zijn goed regelbaar. Ook zijn alle houthaarden van de Defro Intra serie uitgevoerd met een externe lucht aansluiting. 
Als optie zijn de meeste houthaarden uit de Intra serie uit te voeren met een zwarte ceramische binnenkant, extra warmte opslagstenen, een inbouwframe en zwarte handels.
De kleinste Houthaard van de Intra serie is regelbaar vanaf 3,2 kw en de grootste heeft een maximale output van 26,4 kw.

Zoals u ziet is de Defro Home Intra serie Houthaarden zeer compleet en kan zich kwalitatief meten met de grote gerenomeerde merken.
Met echter een groot voordeel, De Houthaarden van de Defro Home intra serie zijn een stuk goedkoper.

Technische gegevens:

 
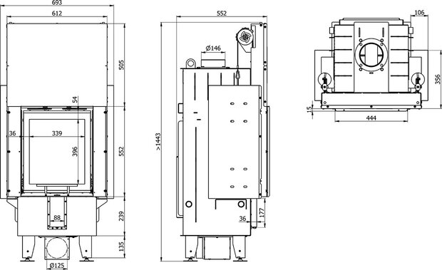
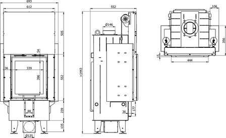
nominale waarde: 8 kw
Regelbaar van - tot: 3,2 kw - 9,6 kW
Energie klasse: A+
Diameter rookkanaal: 150 mm
Rendement: 80,9%
Rookgas temperatuur:       250ºC
Maximale houtlangte: 35 cm
Minimale lucht-inlaat: 400 cm² (inlaat van lucht in de ombouw)
Minimale lucht-uitlaat: 560 cm² (uitlaat van lucht in de ombouw)
Gewicht: 195 kg

Klik hier om ventilatieroosters toe te voegen

Informatie

Draaideur-Houthaard
Dedro intra serie, kan concurreren met de grootse gerenomeerde merken, alleen voor een veel lagere prijs.